Floor plans & dimensions

Floor Level:

Floor plans
& dimensions

Kitchen 4.46m x 3.13m 14'7" x 10'3"
Dining/Family 7.17m x 3.79m 23'6" x 12'5"
Living Room 4.86m x 3.75m 15'11" x 12'4"
Utility 2.78m x 2.29m 9'1" x 7'6"

Kitchen

4.46m x 3.13m | 14'7" x 10'3

Dining/Family

7.17m x 3.79m | 23'6" x 12'5

Living Room

4.86m x 3.75m | 15'11" x 12'4

Utility

2.78m x 2.29m | 9'1" x 7'6

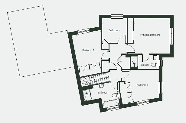
Floor plans
& dimensions

Bed1 3.80m x 3.80m 12'6" x 12'6"
Bed 2 3.64m x 3.28m 11'11" x 10'9"
Bed 3 3.93m x 3.20m 12'11" x 10'6"
Bed 4 2.65m x 2.62m 8'8" x 8'7"

Bed1

3.80m x 3.80m | 12'6" x 12'6

Bed 2

3.64m x 3.28m | 11'11" x 10'9

Bed 3

3.93m x 3.20m | 12'11" x 10'6

Bed 4

2.65m x 2.62m | 8'8" x 8'7

Availability
View all
No. Status
15
Available
+
Type
3 bedroom end terrace with double garage
View Plot 15
48
Available
+
Type
3 bedroom semi-detached home with linked garage
View Plot 48
69
Reserved
+
Type
3 bedroom semi-detached home with garage
View Plot 69
70
Available
+
Type
3 bedroom semi-detached home with garage
View Plot 70
71
Available
+
Type
3 bedroom semi-detached home with garage
View Plot 71
72
Available
+
Type
4 bedroom detached home with garage
View Plot 72
73
Reserved
+
Type
3 bedroom semi-detached home with garage
View Plot 73
74
Available
+
Type
3 bedroom semi-detached home with garage
View Plot 74
75
Available
+
Type
3 bedroom semi-detached home with garage
View Plot 75
76
Reserved
+
Type
3 bedroom semi-detached home with garage
View Plot 76
77
Available
+
Type
3 bedroom semi-deatched home with garage
View Plot 77
78
Available
+
Type
4 bedroom detached home with garage
View Plot 78
79
Available
+
Type
3 bedroom detached home with garage
View Plot 79
80
Reserved
+
Type
3 bedroom semi-detached home with garage
View Plot 80
81
Available
+
Type
4 bedroom link detached home with garage
View Plot 81
Alderbrook, Heathfield Road, Petersfield, Hampshire GU31 4DG

Contact us

Show Home open
Enquiries: 020 8901 8738
Or alternatively register your interest via the following link: